Bel 010-4047749 WhatsApp: 06-21351167 Mail: info@lokkerbol.nl
Foto's (26)
Plattegrond (3)
550.000,-
93m²
2 slaapkamers
A++
Energielabel A++
Vraagprijs woning: € 550.000,- k.k.
Vraagprijs parkeerplaats: € 35.000,- k.k.
ZEEËN VAN LICHT! Wonen met alle gemakken van nu? Dit moderne 3-kamer hoekappartement in het nieuwe appartementencomplex ‘Imagine’ heeft het allemaal: een energielabel A++, een balkon rondom, een eigen parkeerplek én een ligging op eigen grond. Maak jij van dit huis een (t)huis?
De woning is gelegen op een hoek, wat zorgt voor extra lichtinval in de ruime woonkamer. De ramen tot de grond maken het ruimtelijke gevoel nog groter. Hier is genoeg plaats voor een fijne zit-en eethoek. De moderne keuken is van alle gemakken voorzien zodat jij met gemak een lekkere maaltijd op tafel zet. Het grijskleurige aanrechtblad in combinatie met de witte frontjes maken het een strak geheel.
Er zijn twee royale slaapkamers, die beiden toegang bieden tot het balkon. Dat is wakker worden mét uitzicht! Verder is er een nette badkamer en een inpandige berging met de aansluiting voor de wasmachine en plaats voor voorraad of andere spullen. Door het gehele appartement ligt een mooie pvc-visgraatvloer.
Dit appartement is zo te betrekken! Ben jij enthousiast? Neem dan snel contact met ons op voor een bezichtiging!
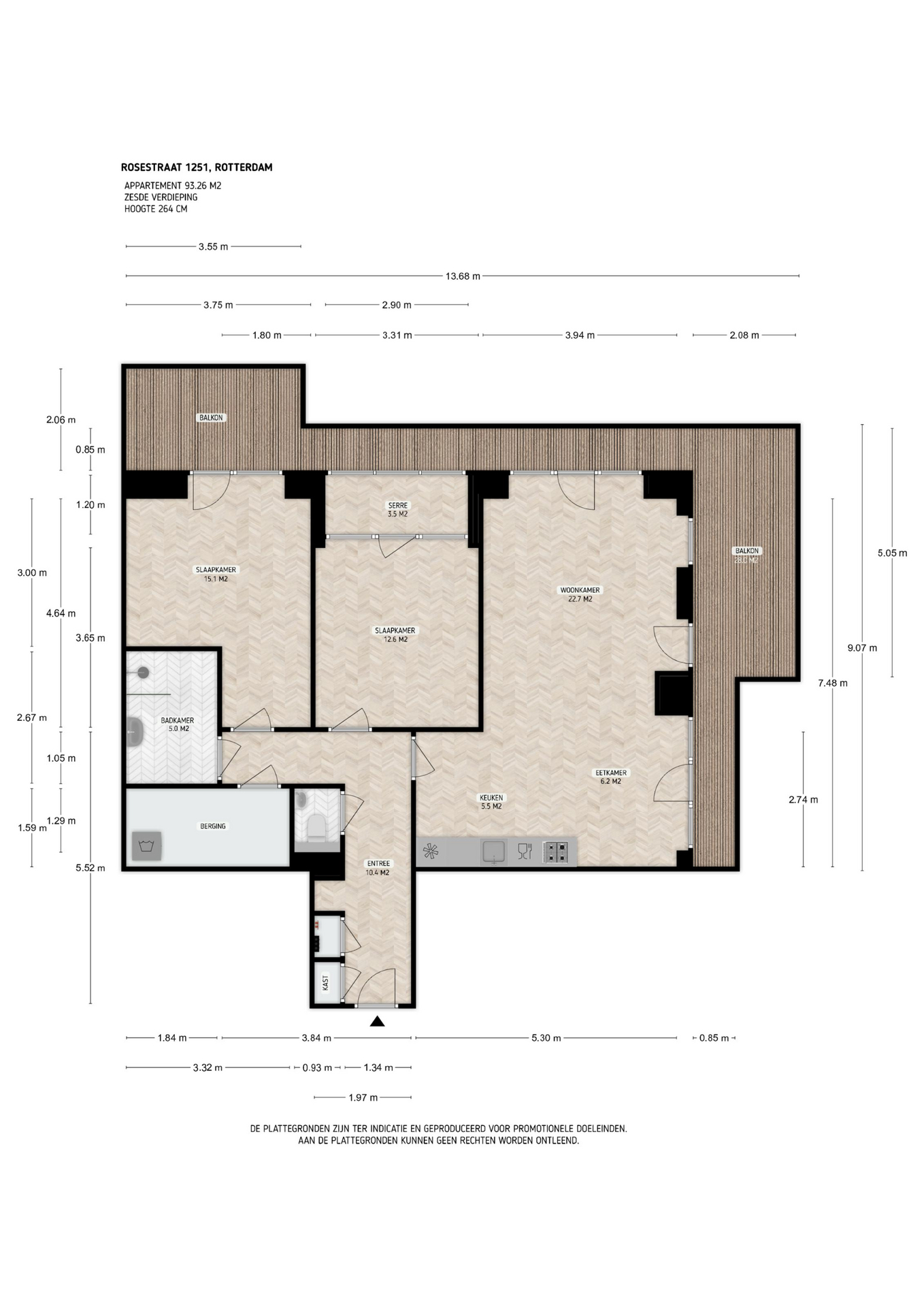
Indeling:
6e Verdieping: entree en toilet
Woonkamer: ± 23 m² met aansluitend balkon: ± 28 m²
Keuken met eetkamer: ± 12 m² voorzien van diverse inbouwapparatuur t.w. 4-pits inductiekookplaat, RVS-afzuigkap, koelkast (met vriesvak), combi-oven, vaatwasser en veel kastruimte
Slaapkamer I: ± 15 m²
Slaapkamer II: ± 13 m²
Badkamer: ± 5 m², voorzien van een inloopdouche, wastafel en designradiator
Inpandige berging met wasmachine aansluiting
Kenmerken en bijzonderheden:
Bouwjaar: 2024
Woonoppervlakte: ± 93 m²
Balkon rondom ± 28 m²
Eigen grond
VvE bijdrage woning 2025: ± € 176,- per maand
VvE bijdrage parkeerplaats 2025: ± € 57,- per maand
Verwarming en warm water: stadsverwarming
Het appartement heeft vloerverwarming en -koeling
Energielabel: A++
Eigen berging op 1e verdieping: ± 6 m²
Parkeerplaats: op 1e verdieping
Gemeenschappelijke afgesloten fietsenstalling op de begane grond
Toegang tot de gezamenlijke binnentuin op de 2e verdieping
Oplevering: in overleg, kan snel
In de koopakte zal een niet-zelfbewoningsclausule worden opgenomen, omdat de verkoper er nooit heeft gewoond.
Persoonlijke noot verkoper:
Dit appartement hebben wij destijds aangeschaft met de intentie om in Rotterdam te gaan studeren. Door de omstandigheden tijdens de coronaperiode zijn onze plannen gewijzigd en zijn wij beiden in het familiebedrijf van onze ouders gaan werken. In de tussentijd is de woning één jaar verhuurd geweest; de huurders zijn recent naar het buitenland geëmigreerd. Aangezien wij nu allebei op zoek zijn naar een permanente woonruimte voor onszelf, hebben wij besloten het appartement te verkopen. De woning is altijd zorgvuldig onderhouden en biedt een uitstekende basis voor de volgende eigenaar.
Imagine
Imagine is een echte eyecatcher in Rotterdam. Het is een beeldbepalend appartementengebouw met toonaangevende architectuur. Het bestaat uit twee torens omzoomd door stadswoningen en commerciële ruimten. In de plint bevinden zich de stadswoningen en binnenhof- en binnentuinappartementen. De appartementen liggen op de 6e t/m 22e verdieping. Het uitzicht is werkelijk waar spectaculair! Je woont hier in een stedelijk gebied, maar het binnenhof bied je een groene oase van rust in de stad.
De wijk:
Vroeger een echte havenarbeidersplek en nu kun je fantastisch wonen en recreëren in deze dynamische wijk die zich transformeert tot een levendige stedelijke bestemming. Gelegen aan de zuidelijke oever van de Maas, tien minuten fietsen vanaf het centrum van Rotterdam en tevens alle benodigde voorzieningen binnen handbereik. Diverse winkels en grote supermarkten, zoals de Albert Heijn en de Lidl, vind je bij de Vuurplaat. Ook woon je vlakbij het stadion met haar XL-winkels, Pathé, bowling en vele horeca gelegenheden. In het late voorjaar van 2024 werd het project Imagine op de kruising Laan op Zuid / Rosestraat opgeleverd met in de plint meerdere commerciële voorzieningen, zoals bijvoorbeeld een koffiebar, lunchplek of kleine winkels. Bovendien wordt het veelzijdige sportcomplex ‘Huis op Zuid ’ verwacht in 2024, een verrijking voor sportliefhebbers. De komende jaren komen er maar liefst drie grote stadsparken in de buurt bij, namelijk het Rijnhavenpark, het Nelson Mandelapark aan de Maashaven en het getijdenpark Feyenoord. De laatste loopt van het Malletgatpark (om de hoek van de straat) tot aan het Eiland van Brienenoord. Hier wordt één groot Getijdenpark aangelegd, waardoor er een nieuw recreatief en ecologisch gebied ontstaat langs de oevers van de Nieuwe Maas. Hier fiets of wandel je dadelijk langs de groene oevers. Kortom, de Kop van Zuid bruist van leven en variëteit, een plek waar architectuur een verhaal van diversiteit en innovatie vertelt.
(Openbaar) vervoer
Op de hoek van de straat vind je de tramhalte Valkenoordseviaduct. Vanaf hier pak je tram 23 of 125 en ben je binnen 10 minuten bij de koopgoot. Pak je liever de trein vanaf station Zuid? Dan sta je binnen 5 minuten op station Blaak. Bij het treinstation vind je tevens bus 33 (via centrum naar Overschie) en bus 66 richting Zuidplein. De metrohaltes van Rijnhaven en Wilhelminaplein zijn op loop- en fietsafstand. Vanaf hier kan je zelfs naar Den Haag met de Randstadrail. Eens op een andere manier jezelf laten vervoeren? Dan kun je met de watertaxi ook een heel eind komen in Rotterdam! De woninglocatie voorziet in goede uitvalswegen met een snelle bereikbaarheid naar de A15 en A16.
Parkeren:
Parkeren doe je gemakkelijk op je eigen parkeerplaats in de afgesloten parkeergarage. De vraagprijs voor de parkeerplaats betreft € 35.000,- k.k.
Restaurants en uitgaansgelegenheden:
Je kunt bijvoorbeeld winkelen of op één van de gezellige terrassen genieten in de nabijgelegen Entrepothaven. Om de hoek vind je het Nieuwe Luxor Theater, Hotel New York of filmtheater LantarenVenster op de Wilhelminapier, maar ook het bruisende centrum van Rotterdam en het hippe Katendrecht zijn binnen enkele minuten te bereiken. Ook zijn het Feyenoord stadion en naastgelegen Pathé bioscoop met diverse bouwmarkten en winkels op korte afstand gelegen.
Ons advies bij het kopen van jouw nieuwe woning? Neem jouw eigen NVM makelaar mee!
Toelichtingsclausule maatvoering
De branchebrede meetinstructie is gebaseerd op de NEN2580. De meetinstructie is bedoeld om een meer eenduidige manier van meten toe te passen voor het geven van een indicatie van de gebruiksoppervlakte. De Meetinstructie sluit verschillen in meetuitkomsten niet volledig uit, door bijvoorbeeld interpretatieverschillen, afrondingen of beperkingen bij het uitvoeren van de meting. Indien bepaalde maten of oppervlaktes voor u van wezenlijk belang zijn, dan adviseren wij u deze na te meten.
Deze informatie is met de nodige zorgvuldigheid samengesteld. Hierbij zijn wij deels afhankelijk van informatie die wij van derden ontvangen. Indien bepaalde informatie voor u van wezenlijk belang is dan adviseren wij u deze op juistheid te controleren. Onzerzijds wordt geen aansprakelijkheid aanvaard voor enige onvolledigheid, onjuistheid of anderszins, dan wel de gevolgen daarvan. Alle opgegeven maten en oppervlakten zijn indicatief.
Vraagprijs |
€550.000,- |
Bouwjaar |
2024 |
Oppervlakte |
93m² |
Kamers |
3 |
Bouw vorm |
Bestaande bouw |
Ligging |
In woonwijk |
Kwaliteit |
Goed |
Slaapkamers |
2 |