Woningaanbod Rotterdam

Direct contact over deze woning?

Bel 010-4047749 WhatsApp: 06-21351167 Mail: info@lokkerbol.nl

Foto's (27)

Plattegrond (5)

Parallelweg 64

3072 KN Rotterdam

495.000,-

96m²

99m²

3 slaapkamers

A

Energielabel A

Omschrijving

Vraagprijs woning: € 495.000,- k.k. inclusief parkeerplaats

96 M2 AAN WOONPLEZIER! Deze fijne eengezinswoning met heerlijke tuin ligt in een rustige, gezellige straat in de levendige wijk Kop van Zuid. Met drie slaapkamers, energielabel A, een eigen parkeerplek én gelegen op EIGEN GROND woon je hier heerlijk comfortabel.

Zodra je de living binnenkomt vallen de ruimte en het vele daglicht je direct op. Door de grote ramen en openslaande deuren heb je hier zeeën aan daglicht. De open keuken is modern, licht en van alle gemakken voorzien. Stap door de openslaande deuren de gezellige tuin in. Dit is de perfecte plek voor een barbecue, koffiemoment in de zon of speelplezier voor de kids. Achterin de tuin staat een praktische schuur voor je fietsen, tuinspullen of klusgereedschap.

Op de eerste verdieping vind je drie slaapkamers, waaronder de master bedroom aan de achterzijde. De twee kamers aan de voorzijde zijn ideaal in te delen als kinder-, werk- of logeerkamer. De badkamer is netjes en praktisch ingedeeld. Ook is er een separate bergkast met wasmachine aansluiting. Zo is dit lekker uit het zicht. Verder beschikt de woning over een eigen parkeerplaats in de afgesloten parkeergarage.

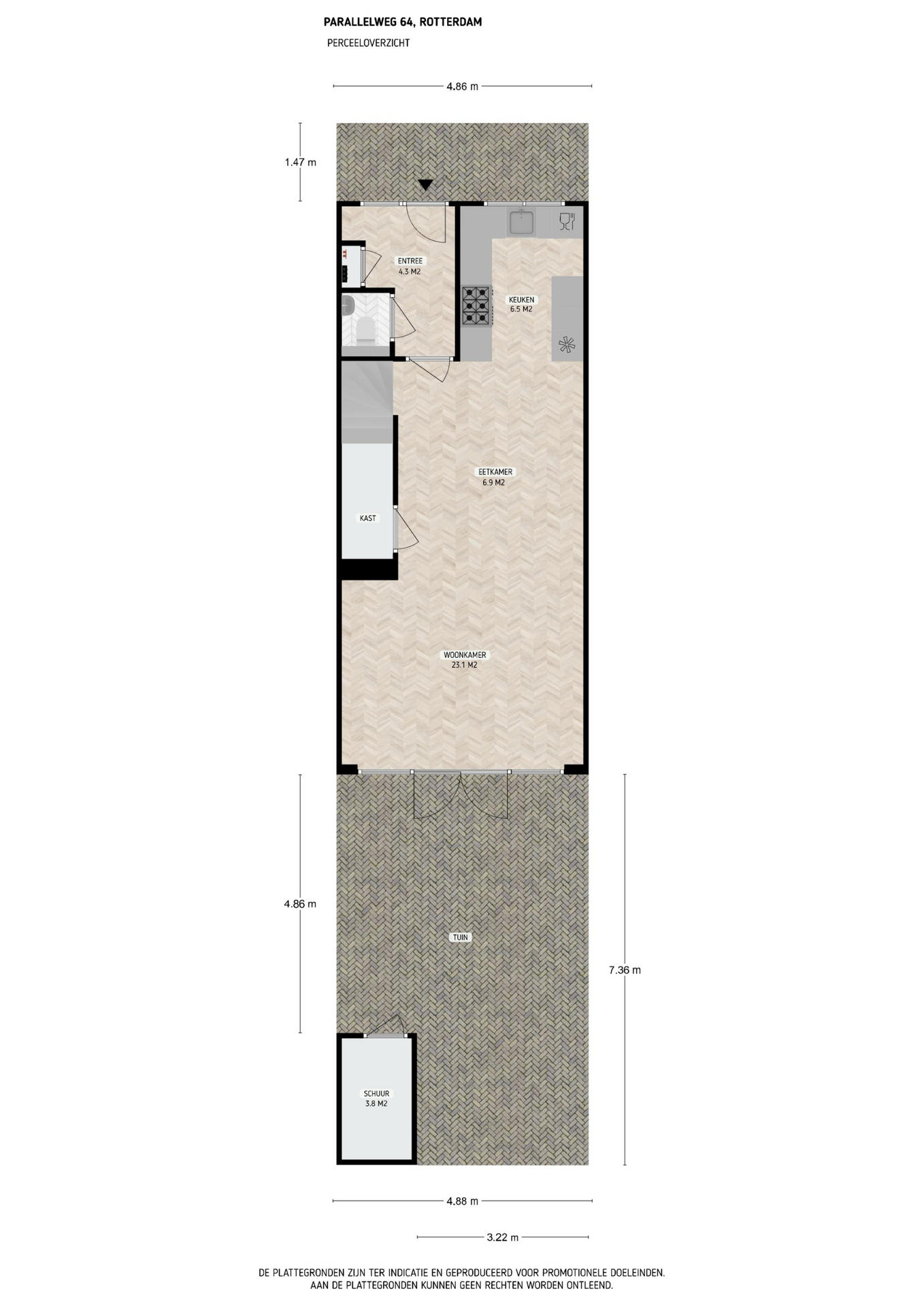
Indeling:

Begane grond: entree, toiletruimte
Woonkamer met eetkamer: ± 30 m²
Keuken: ± 7 m² voorzien van diverse inbouwapparatuur t.w. 4-pits keramische kookplaat, grilplaat, afzuigkap, vaatwasser, oven, koel-vriescombinatie, Quooker en veel kastruimte
Tuin: ± 32 m² voorzien van schuur: ± 4 m²

Eerste verdieping: overloop
Slaapkamer I: ± 16 m²
Slaapkamer II: ± 8 m²
Slaapkamer III: ± 7 m²
Badkamer: ± 6 m², voorzien van ligbad met douchefunctie, inloopdouche, wastafel met meubel en toilet
Inpandige berging voorzien van wasmachineaansluiting

Kenmerken en bijzonderheden:

Bouwjaar: 2012
Woonoppervlakte: ± 96 m²
Perceeloppervlakte: 99 m²
Eigen grond
VvE bijdrage parkeerplaats 2025: ± € 46,- per maand
Verwarming en warm water: stadsverwarming
Energielabel: A
Eigen berging in de achtertuin: ± 4 m²
Parkeerplaats in de afgesloten parkeergarage
Oplevering: in overleg, indicatie februari/maart 2026

Persoonlijke noot verkoper:
Bijna acht jaar hebben we hier met veel plezier gewoond. In dit huis zijn onze kinderen geboren en hebben we als gezin een warme en fijne tijd gehad. De hoge muren zorgen voor een heerlijk ruim gevoel in huis. Onze tuin was een fijne plek om tot rust te komen, waar de kinderen konden spelen en we samen zorgden voor de moestuin. Wat dit huis voor ons extra bijzonder maakte, zijn de buren. Die zijn betrokken en vriendelijk. Het is een buurt waar mensen elkaar groeten, een praatje maken, en altijd bereid zijn om te helpen. We hopen dat de nieuwe bewoners zich hier net zo thuis zullen voelen als wij.

De wijk:
Vroeger een echte havenarbeidersplek en nu kun je er fantastisch wonen met een overweldigende uitzichten. De Kop van Zuid is een levendige, centraal gelegen wijk met alle voorzieningen binnen handbereik. Op loopafstand zijn tramhaltes, waarmee je met een paar haltes in de stad bent. Het Luxor theater bevindt zich op slechts 5 minuten lopen. Diverse winkels, grote supermarkten als Albert Heijn en de Jumbo en restaurants tref je op loop- en fietsafstand. Zo kun je in het Entrepotgebouw of bij de Vuurplaat langs voor de dagelijkse boodschappen, geniet je van cultuur en horeca op de Wilhelminapier en ben je in korte tijd in het bruisende stadscentrum. En het wordt alleen maar leuker. Aan de Laan op Zuid is recent een nieuw zwembad geopend. Ook komen er in de buurt maar nog drie grote stadsparken bij.

Openbaar vervoer voorzieningen:
Het openbaar vervoer tref je in de directe omgeving van de woning. Tram, metro, trein, watertaxi en bus zijn op loopafstand. Je kunt zelfs met de Randstadrail vanaf de Kop van Zuid helemaal naar Den Haag en treinstation Zuid ligt op korte fietsafstand. De woninglocatie voorziet in goede uitvalswegen met een snelle bereikbaarheid naar de A16 en A15.

Parkeren:
Parkeren doe je gemakkelijk op je eigen parkeerplaats in de afgesloten parkeergarage.
Deze is bij de vraagprijs inbegrepen.

Restaurants en uitgaansgelegenheden:
Je kunt bijvoorbeeld winkelen of op één van de gezellige terrassen genieten in de nabijgelegen Entrepothaven. Om de hoek vind je het Nieuwe Luxor Theater, Hotel New York of filmtheater LantarenVenster op de Wilhelminapier, maar ook het bruisende centrum van Rotterdam en het hippe Katendrecht zijn binnen enkele minuten te bereiken. Ook zijn het Feyenoord stadion en naastgelegen Pathé bioscoop met diverse bouwmarkten en winkels op korte afstand gelegen.

Ons advies bij het kopen van jouw nieuwe woning? Neem jouw eigen NVM makelaar mee!

Toelichtingsclausule maatvoering
De branchebrede meetinstructie is gebaseerd op de NEN2580. De meetinstructie is bedoeld om een meer eenduidige manier van meten toe te passen voor het geven van een indicatie van de gebruiksoppervlakte. De Meetinstructie sluit verschillen in meetuitkomsten niet volledig uit, door bijvoorbeeld interpretatieverschillen, afrondingen of beperkingen bij het uitvoeren van de meting. Indien bepaalde maten of oppervlaktes voor u van wezenlijk belang zijn, dan adviseren wij u deze na te meten.

Deze informatie is met de nodige zorgvuldigheid samengesteld. Hierbij zijn wij deels afhankelijk van informatie die wij van derden ontvangen. Indien bepaalde informatie voor u van wezenlijk belang is dan adviseren wij u deze op juistheid te controleren. Onzerzijds wordt geen aansprakelijkheid aanvaard voor enige onvolledigheid, onjuistheid of anderszins, dan wel de gevolgen daarvan. Alle opgegeven maten en oppervlakten zijn indicatief.

+ Lees meer

Kenmerken

Vraagprijs

€495.000,-

Bouwjaar

2012

Oppervlakte

96m²

Kamers

4

Bouw vorm

Bestaande bouw

Ligging

In woonwijk

Kwaliteit

Goed

Slaapkamers

3